【草莓视频懂你更多器系列】
【传力接头系列】
【防水套管系列】
【补偿器系列】
【橡胶接头系列】

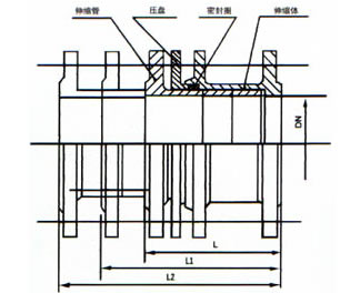
SSQ型铸铁草莓视频懂你更多器也称草莓视频懂你更多节、膨胀节、补偿器、草莓视频懂你更多接头。草莓视频懂你更多器在一定范围内可轴向草莓视频懂你更多,也能在一定的角度内克服管道对接不同轴向而产生的偏移,能极大的方便阀门管道的安装与拆卸,在管道允许草莓视频懂你更多量中可以自由草莓视频懂你更多,一旦越过其最大草莓视频懂你更多量就起到限位,确保管道的安全运行。
SSQ型铸铁草莓视频懂你更多器主要为保障管道安全运行,具有以下作用:补偿吸收管道轴向、横向、角向热变形;吸收设备振动,减少设备振动对管道的影响;吸收地震、地陷对管道的变形量。
SSQ型铸铁草莓视频懂你更多器也称草莓视频懂你更多节、膨胀节、补偿器、草莓视频懂你更多接头。草莓视频懂你更多器在一定范围内可轴向草莓视频懂你更多,也能在一定的角度内克服管道对接不同轴向而产生的偏移,能极大的方便阀门管道的安装与拆卸,在管道允许草莓视频懂你更多量中可以自由草莓视频懂你更多,一旦越过其最大草莓视频懂你更多量就起到限位,确保管道的安全运行。
SSQ型铸铁草莓视频懂你更多器主要为保障管道安全运行,具有以下作用:补偿吸收管道轴向、横向、角向热变形;吸收设备振动,减少设备振动对管道的影响;吸收地震、地陷对管道的变形量。
铸铁草莓视频懂你更多器详细介绍:
1、铸铁草莓视频懂你更多器 该产品为各种给排水管道、水塔、水泵、水表、阀门的安装拆换提供了极大方便,给长距离管路因温差草莓视频懂你更多起到了很好的调节作用。
2、铸铁草莓视频懂你更多器 该产品内管材分为铸铁( HT )、镀锌( DX )和钢制( SF )三种。工作压力分 PN6 、 PN10 、 PN16 三种。
3、铸铁草莓视频懂你更多器安装前须松开压盘螺栓,将该产品拉至安装长度,然后用对角法拧紧,切勿压偏,如架空使用,两端须安装相应的固定支架。
4、铸铁草莓视频懂你更多器 法兰连接采用 GB4216.3 - 4126.5 标准。
5、铸铁草莓视频懂你更多器如选用其它规格可另行生产。
SSQ型铸铁草莓视频懂你更多器使用范围:
由于草莓视频懂你更多器具有良好的综合性能,所以它广泛用于化工、建筑、给水、排水、石油、轻重工业、冷冻、卫生、水暖、消防、电力等基础工程。
SSQ型铸铁草莓视频懂你更多器作用:
SSQ型铸铁草莓视频懂你更多器在一定范围内可轴向草莓视频懂你更多,也能在一定的角度内克服管道对接不同轴向而产生的偏移,能极大的方便阀门管道的安装与拆卸,在管道允许草莓视频懂你更多量中可以自由草莓视频懂你更多,一旦越过其最大草莓视频懂你更多量就起到限位,确保管道的安全运行。
SSQ型铸铁草莓视频懂你更多器安装注意事项:
1、草莓视频懂你更多器在安装前应先检查其型号、规格及管道配置情况,必须符合设计要求。
2、对带内套筒的草莓视频懂你更多器应注意使内套筒子的方向与介质流动方向一致,铰链型草莓视频懂你更多器的铰链转动平面应与位移转动平面一致。
3、需要进行“冷紧”的草莓视频懂你更多器,预变形所用的辅助构件应在管路安装完毕后方可拆除。
4、严禁用草莓视频懂你更多器变形的方法来调整管道的安装超差,以免影响草莓视频懂你更多器的正常功能、降低使用寿命及增加管系、设备、支承构件的载荷。
5、安装过程中,不允许焊渣飞溅到波壳表面,不允许波壳受到其它机械损伤。
6、管系安装完毕后,应尽快拆除草莓视频懂你更多器上用作安装运输的黄色辅助定位构件及紧固件,并按设计要求将限位装置调到规定位置,使管系在环境条件下有充分的补偿能力。
7、草莓视频懂你更多器所有活动元件不得被外部构件卡死或限制其活动范围,应保证各活动部位的正常动作。
8、水压试验时,应对装有草莓视频懂你更多器管路端部的次固定管架进行加固,使管路不发生移动或转动。对用于气体介质的草莓视频懂你更多器及其连接管路,要注意充水时是否需要增设临时支架。水压试验用水清洗液的96氯离子含量不超过25PPM。

技术参数:
|
公称通径
|
最小长度L
|
安装长度L1
|
最大长度L2
|
|
40
|
140
|
170
|
200
|
|
50
|
140
|
170
|
200
|
|
65
|
160
|
205
|
250
|
|
80
|
180
|
225
|
270
|
|
100
|
200
|
250
|
300
|
|
125
|
220
|
250
|
300
|
|
150
|
220
|
270
|
320
|
|
200
|
240
|
290
|
320
|
|
250
|
260
|
315
|
370
|
|
300
|
280
|
340
|
400
|
|
350
|
290
|
350
|
410
|
|
400
|
300
|
360
|
420
|
|
450
|
320
|
385
|
450
|
|
500
|
320
|
385
|
450
|
|
600
|
350
|
415
|
480
|
|
700
|
370
|
440
|
510
|
|
800
|
390
|
460
|
530
|
|
900
|
420
|
495
|
570
|
|
1000
|
440
|
515
|
590
|
|
1200
|
490
|
570
|
650
|
|
1400
|
520
|
605
|
690
|
|
1600
|
550
|
640
|
730
|
|
1800
|
590
|
680
|
770
|
|
2000
|
630
|
720
|
810
|
|
2200
|
670
|
760
|
850
|
|
2400
|
710
|
800
|
890
|
|
2600
|
750
|
840
|
930
|
|
2800
|
290
|
880
|
970
|
|
3000
|
840
|
920
|
1010
|
|
3200
|
880
|
960
|
1050
|
|
3400
|
920
|
1000
|
1090
|